מידעון 77
13/3/2026
שלום לכולם.ן
אני מקווה שאתם והיקרים לכם מוגנים ושומרים על עצמיכם במצב המלחמה בו אנו נמצאים. נקווה לבשורות טובות.
בשורה טובה- מזה כחודש שהמידעון מופץ גם בשפה האנגלית. תודה למתנדבים טובים שדואגים לזה. מוזמנים לפנות לחברים דוברי אנגלית ולהציע להם להצטרף לרשימת התפוצה של המידעון באנגלית. שלחו אליי את פרטי המייל שלהם. עשו מאמץ וצרפו עוד חברים גם למידעון בעברית- ידע זה כוח ושקיפות.
הנה התקציר:
- נושא ראשון: איך התנהלה ישיבת המועצה השבוע. הפעם יכולתי לדבר ולשאול כל שאלה. קיבלתי תשובות אבל כרגיל חוזרת הבעיה של הסתרת מידע מהותי, תשובות חלקיות ותשובות לא נכונות.
- נושא שני: חניון נילי החדש. אושר תקציב נוסף לתיקון הקיר שקרס כך שסך הפרויקט הזה עומד על 2.356 מיליון ₪. ומה יהיה על קיר המורשת היפה שנהרס בהקמה.
- נושא שלישי: אישור הצטרפות המועצה כיזמית תכנית ההתחדשות עירונית ברחוב התירוש, נווה שרת עבר בישיבה. רק אני הצבעתי נגד.
הסיבה שלי היא כפולה. ראשית, עדין חסר הרבה מידע מהותי. שתיים, כי הפרויקט במתכונתו הנוכחית (ראו תרשים בהמשך) גדל בצורה מוגזמת ממה שסוכם בקדנציה הקודמת. גדל כך שהוא רווחי ליזמים אבל פחות טוב לתושבים. ואולי גם לדיירים שאיתם עדין לא חתם היזם על הסכם- אז לאן ממהרים?
- נושא רביעי: ועדת יקיר זכרון. בישיבה שמענו טענות קשות מפי ראש הוועדה המתפטר אילן עמרני בנוגע לפוליטיזציה, אי מסירת מידע נכון וזילות בבחירת האנשים בהליכי הוועדה. וזה הוביל אותנו לאשר הקמה של ועדה חדשה שתהיה מקצועית ללא חברי מועצה ועובדי מועצה. קראו בהמשך- קריאה להתנדב לוועדה.
נושא ראשון: איך התנהלה ישיבת המועצה השבוע
ביום שלישי למרות המצב ורצף האזעקות התכנסו לישיבת המועצה החודשית. כי המועצה חייבת להמשיך ולפעול ולספק לכם שירותים בכל מצב.
התאכזבתי מאד שבחלק של עדכוני ראש המועצה הוא לא ראה לנכון לעדכן אותנו בנעשה ביישוב בעת מצב החירום – הפעולות שננקטות, תוכניות, הקשר עם פיקוד העורף ועוד.
מתחילת המערכה של "שאגת הארי" לא נמסר אף עדכון לחברי המועצה- לא בכתב ולא בע"פ , לא כונסה וועדת חובה, בטחון מלח פס"ח. אנחנו פשוט לא קיימים עבור ראש המועצה והמשמעות היא שגם הציבור שחברי המועצה מייצגים, לא מקבל דיווח ושקיפות. וזה ניהול לא תקין.
בישיבה נדונו 2 שאילתות והצעה אחת לסדר שאני הגשתי וכן 17 נושאים בסדר היום מה שאומר 17 הצבעות. המידעון הנוכחי וזה שבשבוע הבא יסקור ישיבה חשובה זו.
אציין שבישיבה הנוכחית התאפשר לי לשאול כל שאלה וקיבלתי מענה לכל שאלה שלי. מה שלא קרה בישיבה הקודמת בעקבותיה נאלצתי להוציא מכתב חריף ליועמ"ש ומבקר המועצה בהעתקים לראש המועצה ומשרד הפנים בו הבהרתי את חומרת המעשה של ראש המועצה ואת שתיקת שומרי הסף. במכתב כתבתי:
מניעת זכות דיבור – ראש המועצה פעל בניגוד לסעיף 39 לצו הרשויות המקומיות כאשר מנע ממני לשאול או להתייחס בנושאים הקשורים במישרין לסעיף מס' 8 לסדר היום , כאשר אני זכאית לפחות 10 דקות בגין כל נושא בסדר היום כפי שמקנה לי החוק. (ראו, דקה 1:15 לישיבה שאני מבקשת לשאול את המתכננת שאלה ראש המועצה אומר לי: "לא את לא שואלת שום דבר.. אנחנו סיימנו.")
שלילת זכות הדיבור מחברת מועצה היא פגיעה לא רק בהוראת החוק אלא גם בזכותו של הציבור שבחר בי.
במהלך הישיבה ובזמן האירוע אתם כשומרי הסף לא הערתם לראש המועצה כי פעולתו זו אינה חוקית והיא בניגוד לצו בכך שהוא מונע ושולל מחברת מועצה להתייחס לסעיף הנדון בסדר היום.
בישיבה הקרובה ב- 10.3.2026 יעלה נושא 8 לסדר היום (כרגע הוא נושא 14בסדר היום החדש). בכוונתי לממש את 10 דקות המינימום שמגיעות לי לדבר ולשאול על הנושא. ומכאן מכתבי זה אליכם במטרה שהפעם כן תפעלו כדי שלא יופר הצו ואוכל לממש את זכותי כחברת מועצה.
אין במכתב זה כדי לפגוע בכל זכות השמורה לי על-פי הדין.
ישיבת מועצה חייבת לאפשר לכל חבר מועצה לשאול ולקבל מידע של אמת. כך שהזכות לדבר בישיבה ולשאול שאלות קשות היא רק החלק הראשון. שהתקיים סוף-סוף בישיבה השבוע. החלק השני היא החובה של ראש המועצה לענות תשובות אמת. וכאן אנו בבעיה חמורה. חשפתי במידעונים מקרים רבים של מסירת מידע שקרי במליאה. גם הסתרה של מידע מהותי היא שקר. ולצערי זה היה גם בישיבה השבוע.
תודה לכם על הנושאים והשאלות שאתם מעבירים אליי בשוטף כל העת. אני תמיד מקפידה להשיב לכל אחד ואחת.
תודה ענקית לתושבים המעורבים שהגיעו לישיבה. תודה גם ל- 200 התושבים שצפו בשידור החי! טוב שידעו כל חברי המועצה שהתושבים מעורבים ומסתכלים.
נושא שני: חניון נילי החדש
בתחילת הישיבה נדונה הצעה לסדר הגשתי בנושא חניון נילי החדש הכולל כ 70 מקומות חניה. הכניסה אליו היא מימין לתחנת הדלק במרכז המושבה. החניון משתרע משדרות נילי ועד המפגש עם חניון בזק כאשר בין שני החניונים מפריד קיר לכל אורכו, אין מעבר עם רכבים ויש מעבר רגלי. בחנין בזק מותקן מדחן וקיימות אופציות תשלום נוספות כגון פנגו , סלופארק וכו'. אלא שהמדחן הקיים מרוחק ממרבית החניות בחניון נילי.
ביצוע החניון מבוסס על תכנון ותקציב שאושר בקדנציה הקודמת כולל גיוס של מאות אלפי שקלים ממשרד התיירות (בשל התייקרויות הגדלנו את התקציב) /
בהצעה לסדר ביקשתי מהמועצה לדאוג שיהיה מדחן במגרש החניה החדש שנפתח בשדרות נילי ששמו אגב – חניון הקונגרס הציוני. בתשובה שמסר מזכיר המועצה עלה שעלות מדחן לחודש היא 1800 ₪, וכרגע אין כמעט הכנסות במגרש זה שעומד ריק רוב היום (עוד לפני המלחמה)- כך שאין הצדקה כלכלית למדחן. והחונים שאין להם אפליקציית תשלום בטלפון יצטרכו ללכת למגרש בזק הצמוד ולשם במדחן ששם.
אחד מהנושאים לסדר היום היה הגדלת התב"ר של בניית החניון בעוד 100,00 ש"ח לטובת תיקון קיר ישן שהחל להתפרק עקב העבודות. הכוונה לקיר בין שני החניונים שנדרש כעת להפוך לקיר בטון. כמובן שאישרנו פה אחד.
עלות הקמת החניון הזה עומדת על 2.356 מיליון ₪. וזה חניון חדש ומסודר שאני כבר עושה בו שימוש רב.
בישיבה שאלתי את ראש המועצה מה לגבי קיר המורשת היפה שעמד בשעתו בחניון נילי. זה קיר שחלקו עדין עומד ועוטר בזמנו לרגל חגיגות ה- 140 ליישוב שהוכן באהבה רבה בידי נירה אפרתי ותלמידי בתי הספר בזכרון יעקב
עיטורי הקיר שסיפרו את סיפורה של המושבה ואתריה, חלקם נהרסו לחלוטין בעבודות ההקמה של החניון. ראש המועצה השיב שהתנצל בפני נירה ואפרתי וסיכם עמה שעיטורי קיר המורשת יוקמו מחדש והמועצה תקצה לו את המשאבים הנדרשים. אז תודה לנירה אפרתי שתטפל שוב בנושא וכולנו מחכים לראות את הקיר החדש. (מצרפת תמונה של הקיר המעוטר והמיוחד שהיה במקום ונהרס).

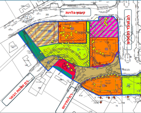
נושא שלישי: אישור הצטרפות המועצה כיזמית תכנית ההתחדשות עירונית ברחוב התירוש, נווה שרת
תזכורת קצרה: מדובר מגה פרויקט במסגרתו יפונו שני הבניינים שרואים בתמונה בהם יש היום 28 דירות והרבה שטח ירוק. לפי התוכנית שהמועצה תגיש כיזמת הכל יהפוך למתחם שיכלול 135 דירות עם שטחים מסחריים עצומים וציבוריים. כלומר תוספת עומסים וציפוף לא מבוקר בצומת המרכזית בשכונת נוה שרת. יש כאן חריגה ממה ששניתן בפרויקט זהה וסמוך של בניני הרכבת ברחוב מרבד הקסמים. שם כבר אושר פרויקט פינוי של 36 יחידות – יקיימו 130 יח'. כלומר יחס בו עבור כל יח' קיימת מקימים כ 3.5 יח'. ואילו בתוכנית החדשה ברחוב התירוש היחס שהוצג לנו הוא 4.8 יח' חדשות לכל יחידה קימת!
בנוסף ל 3 מבני המגורים שעליהם הוסכם בקדנציה הקודמת הציג ראש המועצה באותו תא השטח את הכוונה לבנות עוד שני מגדלים נוספים. מגדל מגורים נוסף מעל מבנה מעל מבנה קופת חולים הקיים (מתוכננת תבנה קופת חולים חדשה ומעליה מגדל מגורים) עם עשרות יחידות דיור. ועוד מגדל משרדים מעל "פיצוצית הגמד".
ברור שכולנו בעד התחדשות עירונית – זה מצוין לדיירים שיפונו ויקבלו נכס חדש ומשופר, כולל מיגון דירתי וזה טוב ליישוב. אבל בפרויקט הזה רב הנסתר על הגלוי.


צבע חום אדמה – 3 מבני מגורים סה"כ 135 יח'
תא שטח פסים חום/צהוב/אפור – מגורים מעל מבנה קופת חולים
תא שטח פסים סגול/אפור – מגדל משרדים, תעסוקה
בישיבה קודמת הופיע בפנינו אחד היזמים של התוכנית- צחי ברקו והמתכננת מטעם היזמים. ראש המועצה מנע ממני לשאול את המתכננת שאלות וזאת בניגוד לחוק ולצו הרשויות המקומיות כך שאני נותרתי עם הרבה סימני שאלה. עליהם כבר כתבתי במידעונים בהרחבה. ההצבעה נדחתה לישיבה הבאה שזו הישיבה שהתקיימה השבוע – האם לאשר את צירוף המועצה כיזמת של הפרויקט מה שיביא להגשת התוכנית בידי המועצה המקומית שכן שני היזמים לא מצוינים בתכנית.
השבוע ראש המועצה הסביר שמדובר "בעניין טכני" בו המועצה חייבת להצטרף כיזמת התוכנית כי שטחה כולל גם שטחים ציבוריים וכבישים השייכים למועצה. וזאת אף שהתוכנית מתייחסת בעיקר לשטח של רשות מקרקעי ישראל שכן הקרקע שלה היא הקרקע המשלימה בפרויקט. ובלי הסכמה של רמ"י לא יהיה פרויקט.
בישיבה השבוע התברר שצדקתי לאורך כל הדרך כשטענתי שאסור למועצה להצטרף כיזמת כל עוד אין לה הסכם מול היזמים. אז השבוע פתאום נאמר שחייב להיות הסכם כזה, ויועמ"ש המועצה ידאג להסכם והתוכנית לא תוגש אלא לאחר חתימת ההסכם (שגם אותו חובה להביא לאישור מליאת המועצה). אני מקווה שבעתיד לא יצוצו עוד דברים שאמרתי ויתבררו כנכונים. למשל, למה למהר ולהגיש תכנית לפני שיודעים בוודאות שיש ליזמים הסכם חתום מול הדיירים, וכשאין הסכם חתום מול רמ"י שהיא בעלת הקרקע המשלימה של הפרויקט. ובלעדיה אין פרויקט, או מה ההחלטות של הרשות להתחדשות עירוניות שהיא זו שמאשרת את יחס בין מס' הדירות הישנות למספר הדירות החדשות שיבנו.
אני מזכירה מה שכתבתי במידעון קודם – שהתייעצתי עם עורכי דין מומחים בתחום התחדשות עירונית שלא הבינו למה המועצה צריכה להיות יזמת של פרויקט שאין לה בו לפחות 25% מהשטח. ועדין לא הבנתי למי זה טוב המהלך הזה.
בישיבה השבוע רק אני הצבעתי נגד. כולם תמכו.
נושא רביעי: ועדת יקירי זכרון
ה- הפתעה של הישיבה הייתה בנושא זה. כאשר יו"ר ועדת יקירי זכרון יעקב אילן עמרני הודיע בישיבה על התפטרותו מהתפקיד ועל כך שהוועדה לא יכולה לבחור את מקבלי האות. אילן אמר:
"….לאורך הדרך ניסינו לעשות עבודה טובה והוגנת, בנינו תקנון וועדה וניסינו לבנות הליך בחירה מסודר ושקוף. אבל לאחר שנבחרו מועמדים קיבלתי פניות ועדכונים שבחלק מהמקרים היו אי דיוקים בפרטים שנכתבו ברזומה. ובמקביל בשנה האחרונה ובזמן המלחמה ראינו אנשים מדהימים שמתנדבים… בתוך כל זה הבנתי שצריך לחשוב מחדש על הדרך שבה פועלת הוועדה. לדעתי הוועדה שבוחרת את יקירי היישוב צריכה להיות וועדה מקצועית יותר וללא פוליטיקאים. ולכן החלטתי גם מתוך תחושת אחריות וגם מתוך תחושת לב להתפטר מתפקיד יו"ר הוועדה. אני מבקש בהזדמנות זו לבקש את התנצלותם של התושבים שהגישו את מועמדותם ואף נבחרו אך בסופו של דבר הדבר לא יצא אל הפועל."
אתם יכולים להקשיב לדבריו מדקה 1:05 בהקלטה הישיבה-
ראש המועצה הוסיף ואמר – שהפוליטיקה נצחה את הוועדה ושברוב המקרים לא היה שום קשר בין האנשים שנבחרו לתרומה ליישוב. שנוצר מצב אמיתי שאפשר לבחור בכל בנאדם שעובר במעבר חצייה. ואילו יקיר זה מישהו שתרם ותורם במשך עשרות שנים למושבה בכל כך הרבה אספקטים.
ניסיתי לשאול את הסגן מאיר ואנונו שהיה יו"ר הוועדה בקדנציה הקודמת- האם טענות חמורות אלו של פוליטיזציה, אי מסירת מידע נכון וזילות בבחירת האנשים- הן נכונות. שאם כן, זה עניין חמור. ראש המועצה אסר על ואנונו להשיב בטענה שזה לא הנושא לדיון.
אז אין לי אלא לקבל את עדותו של אילן עמרני שכן הכלל בדיני ראיות הוא שאם אדם מפליל עצמו ומודה בדברים לא ראויים- משמע שזה נכון כי "אין אדם משים עצמו רשע." אז כנראה שהיו פגמים חמורים שלא מאפשרים כבר שנתיים להעניק את הפרס הזה. צר לי על כל האנשים היקרים שהגישו מועמדות ומחכים. נכון היה לאשר את אלו שנבחרו עד השנה והחל משנת 2026 לפעול עפ"י החלטה חדשה.
ההצעה לה הצבענו היה לשנות לחלוטין את הרכב הוועדה לוועדה מקצועית שלא ישבו בה עובדי מועצה או חברי מועצה. אני בוודאי מעדיפה ועדה מקצועית בלתי תלויה בראש המועצה. אז כולנו הצבענו פה אחד בעד שינוי הרכב ועל שזהות אנשי הציבור שישבו בה יובא לאישור המועצה.
ראש המועצה ביקש מאיתנו לחשוב על אנשים מתאימים לתפקיד. אנשים בעלי שיעור קומה שאולי גם יש להם ניסיון בוועדות בחירה מסוג זה (בכל תחום)- ומכאן פנייתי אליכם- מי שרואה עצמו מתאים לתפקיד חשוב זה. פנו אלי בהקדם. היישוב זקוק לאנשים טובים שיכהנו בוועדה זו.